Brookline Townhouse

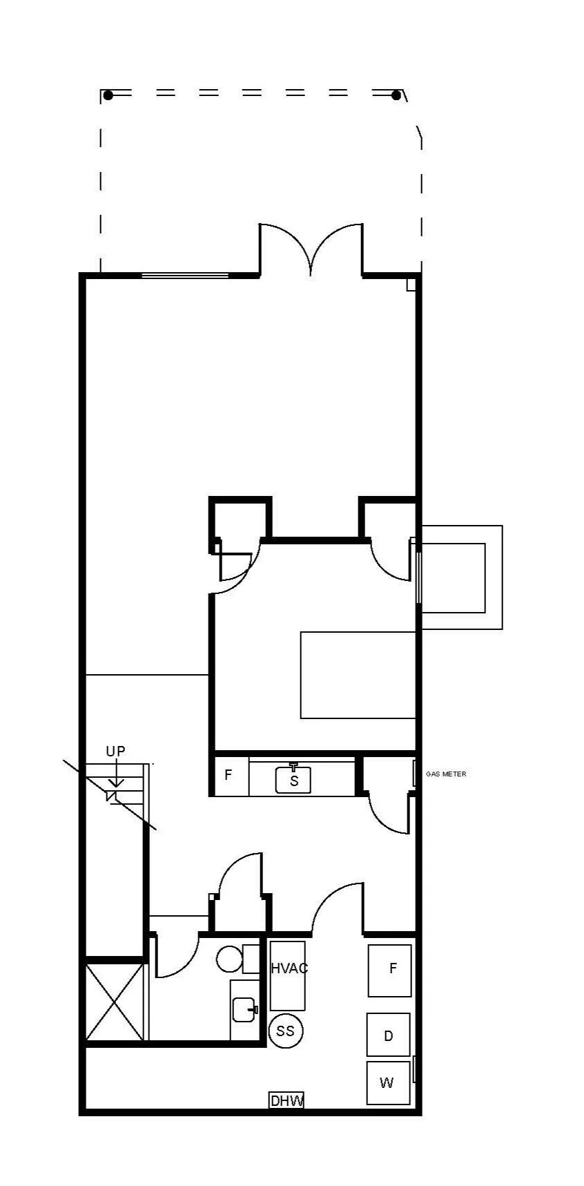
This property was extensively damaged by fire in 2018. The 1970’s townhouse is located in a historic district. We modified the layout to add two additional bedrooms, removed walls to open up the kitchen, and worked with the client to select all new finishes. We worked closely with the owner to document the project for both the insurance claim as well as for approval by the city’s Preservation department for new windows and a new exterior double door from the kitchen to the side patio.

 

Design & Project Management - Renovated for owner

2,500 square feet

Completed 2019

3 Carlton St 3 Carlton St, Brookline, MA_Property-Precision-31.jpg